- Площадь м2: 63
- Одноэтажный дом
Особенности проекта
Дом 63м2, конфигурация с террасой 16м2 - стиль 1, максимальная функциональность!
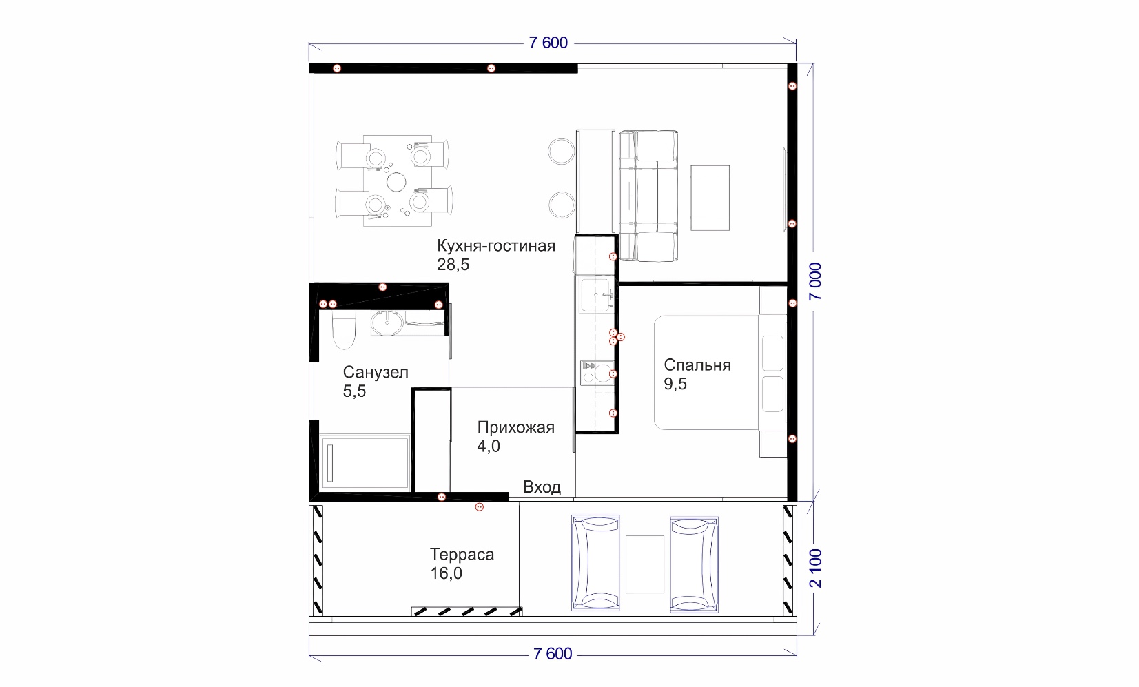
Вариант планировки 3-1: прихожая, одна спальня, большая кухня-гостиная 28,5м2 и санузел 5,5м2. Проект предусматривает установку лестницы и террасы на крыше.
Описание
Smart КУБ DESIGN —
где комфорт встречается с инновациями! Это новое поколение наших модульных домов. Мыразработали инновационный принцип создания проекта модульного дома: от простых форм до хай-тека. В основе — базовые дома размером 7х7,6м и 10,6-7,6м с санузлом 5,5м2 и свободным пространством 41,5м2 и 65,5м2.
Теперь вам не нужно ломать голову, как сделать удобную планировку, мы решили этот вопрос за вас. Предлагаем 13 модульных планировок, в которых продуманы все детали для любых потребностей: от дома с двумя комнатами до четырехкомнатного.
В отделке фасада используются комбинации стекла, камня и дерева. Минималистичный и функциональный интерьер.
Разработанная нами стена-жалюзи для террасы позволяет регулировать просвет в ту сторону, в которую вам необходимо.
Для расширения функционала предлагаем несколько стилей террас: терраса на крыше и дополнительный модуль сауны.
Идеальное решение для людей, ценящих технологии, энергоэффективность и комфорт.
Главные особенности:
— уникальная модульная технология дома и планировки;
— высокая степень готовности на производстве;
— максимально быстрый монтаж в любом регионе;
— минимальные транспортные расходы (базовый дом помещается на один трал);
— встроенные умные системы управления и автоматизации.
Основные характеристики дома
1. Производство и установка
— Дом изготавливается на производстве, готовность 96%, что значительно сокращает сроки строительства на участке.
— Мы можем доставить и установить его максимально быстро в любом регионе, независимо от климата и удаленности.
— Монтаж дома занимает минимальное время. Все системы и отделка уже выполнены на производстве.
2. Умный дом и автоматизация
— Дом оснащен системой «Умный дом» с полным голосовым управлением.
— Контроль отопления, освещения, электроприборов и безопасности — через мобильное приложение.
— Система защиты от протечек отключит воду при аварийной ситуации. Дополнительные умные датчики (дыма, движения и т. д.) могут быть интегрированы в единую систему.
3. Модульная система
— Базовые дома 50м2 и 74м2 возможно оснастить по мере необходимости всеми дополнительными элементами позже.
4. Технологии комфорта и энергоэффективности
— Два варианта системы отопления: 1. базовый электрический теплый пол; 2. дополнительная система водяного теплого пола с электрическим котлом, обеспечивающим равномерное распределение тепла по всему дому.
— Высокие потолки 2,85 м создают ощущение простора и комфорта.
— Теплые окна РЕХАУ DELIGHT 70-5 (черные снаружи) минимизируют теплопотери. Опционально: ламинированный профиль внутри в черный цвет и стеклопакет DS NEUTRAL.
— Надежная усиленная конструкция — использование сухой строганной антисептированной доски и LVL-балок.
— Теплоизоляция дома для самых суровых климатических условий, что существенно снижает теплопотери и расходы.














